Kotły na drewno – ekonomiczne, niezawodne i tradycyjne ogrzewanie dla domów i firm
Kotły na drewno – ekonomiczne, niezawodne i tradycyjne ogrzewanie dla domów i firm
Ogrzewanie drewnem pozostaje jednym z najbardziej stabilnych i ekonomicznie uzasadnionych rozwiązań dla gospodarstw domowych. W czasach zmiennych cen energii i niepewności na rynku wielu właścicieli domów oraz większych nieruchomości poszukuje niezawodnego systemu, który zapewnia wysoką wydajność, przewidywalne koszty oraz długoterminową eksploatację. Właśnie dlatego Kotły na drewno nadal zajmują ważne miejsce wśród preferowanych rozwiązań grzewczych.
Ten typ ogrzewania charakteryzuje się wysoką efektywnością, jeśli moc urządzenia jest prawidłowo dobrana, a instalacja odpowiednio zaprojektowana. Dodatkową zaletą jest dostępność drewna opałowego w wielu regionach, co ułatwia planowanie kosztów eksploatacji. Przy odpowiedniej konserwacji i prawidłowym użytkowaniu kocioł na drewno może zapewnić stabilne ogrzewanie przez wiele lat bez potrzeby stosowania skomplikowanej automatyki lub kosztownej infrastruktury.
.png)
Czym jest kocioł na drewno
Kocioł na drewno to urządzenie grzewcze przeznaczone do instalacji centralnego ogrzewania, które wykorzystuje paliwo stałe (drewno opałowe) do podgrzewania wody. Podgrzana woda krąży w systemie rur do grzejników lub ogrzewania podłogowego, zapewniając równomierną temperaturę w całym budynku.
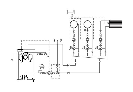
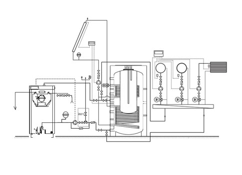
W przeciwieństwie do standardowych pieców i kominków, kocioł jest przeznaczony do ogrzewania całego domu lub obiektu, a nie tylko jednego pomieszczenia. Działa jako główne źródło ciepła i może być połączony ze zbiornikiem buforowym, aby zwiększyć wydajność i ograniczyć częstotliwość dokładania paliwa. W zależności od modelu i konstrukcji kotły mogą oferować różny poziom sprawności oraz kontroli procesu spalania. Nowoczesne rozwiązania są projektowane tak, aby optymalizować spalanie drewna i ograniczać straty ciepła, dzięki czemu nadają się zarówno do nowych budynków, jak i modernizacji istniejących instalacji grzewczych.

Jak działa kocioł na drewno
Proces działania kotłów na drewno opiera się na spalaniu paliwa stałego oraz przekazywaniu wytworzonego ciepła do płaszcza wodnego (wymiennika ciepła). Po rozpaleniu drewna powstaje ciepło, które podgrzewa wodę znajdującą się w kotle. Pompa obiegowa rozprowadza gorącą wodę do instalacji grzewczej, po czym schłodzona woda wraca do kotła w celu ponownego podgrzania.
Nowoczesne modele można podzielić na kilka głównych typów:
- Standardowe kotły z naturalnym ciągiem
- Kotły z wentylatorem wymuszającym ciąg
- Kotły pirolityczne (zgazowujące) o wyższej sprawności
Kotły pirolityczne zapewniają pełniejsze spalanie gazów drzewnych, co prowadzi do mniejszego zużycia paliwa i niższej emisji zanieczyszczeń.

Zastosowanie kotłów na drewno
Kotły na drewno są odpowiednie dla obiektów wyposażonych w wodny system ogrzewania. Najczęściej stosuje się je w:
- Domach jednorodzinnych
- Domkach letniskowych i nieruchomościach wiejskich
- Niewielkich budynkach wielorodzinnych
- Warsztatach i magazynach
- Halach przemysłowych
- Budynkach publicznych w obszarach bez dostępu do gazu
Są szczególnie wydajne w regionach, gdzie drewno opałowe jest łatwo dostępne i opłacalne.
Jak dobrać odpowiednią moc kotła
Dobór właściwej mocy jest jednym z najważniejszych czynników przy zakupie kotła. Zbyt mała moc nie zapewni odpowiedniego komfortu cieplnego, natomiast zbyt duża spowoduje nieefektywną pracę i niepotrzebne zużycie paliwa.
Przy określaniu wymaganej mocy uwzględnia się następujące czynniki:
- Całkowitą powierzchnię ogrzewaną
- Wysokość pomieszczeń
- Izolację termiczną
- Rodzaj okien i drzwi
- Strefę klimatyczną
Jako ogólną zasadę przyjmuje się, że 1 kW mocy może ogrzać około 10 m² przy dobrej izolacji i standardowej wysokości pomieszczeń. Na przykład dla domu o powierzchni 150 m² zwykle zaleca się kocioł o mocy od 15 do 20 kW.
Główne zalety kotłów na drewno
Kotły na drewno są chętnie wybierane ze względu na kilka kluczowych zalet. Zapewniają ekonomiczne ogrzewanie oraz długą żywotność, zwłaszcza gdy są wykonane z wysokiej jakości stali.
Do ich głównych zalet należą:
- Niski koszt paliwa
- Wysoka wydajność grzewcza
- Odpowiednie do ogrzewania dużych powierzchni
- Relatywna niezależność od dostawców energii
- Niższa inwestycja początkowa w porównaniu z systemami automatycznymi, takimi jak Kotły na pellet lub kompletne Kotły na pellet (zestawy)
Wady, które warto wziąć pod uwagę
Pomimo licznych zalet kotły na drewno wymagają większego zaangażowania użytkownika. Nie są w pełni zautomatyzowane i wymagają regularnej obsługi.
Do głównych wad należą:
- Ręczne dokładanie paliwa
- Konieczność posiadania miejsca do przechowywania drewna
- Okresowe czyszczenie popiołu
- Niższy komfort użytkowania w porównaniu z systemami na pellet, takimi jak Piece / kominki na pellet z płaszczem wodnym
Różnica między kotłami na drewno a kotłami na pellet
Kotły na pellet stanowią nowoczesną alternatywę dla tradycyjnych systemów Kotły na drewno. Główna różnica polega na poziomie automatyzacji oraz sposobie podawania paliwa.
Kocioł na drewno jest ładowany ręcznie i wymaga regularnego nadzoru. Początkowa inwestycja jest zazwyczaj niższa, a paliwo często tańsze i szeroko dostępne.
Kocioł na pellet posiada automatyczny system podawania paliwa, elektroniczne sterowanie oraz programowalne tryby pracy. Zapewnia to wyższy komfort użytkowania i bardziej precyzyjną kontrolę temperatury, jednak koszt początkowy jest wyższy.
Wybór między tymi dwoma rozwiązaniami zależy od budżetu, oczekiwanego poziomu automatyzacji oraz dostępności paliwa w danym regionie.
Różnica między kotłem na drewno a piecami / kominkami na pellet z płaszczem wodnym
Piece / kominki na pellet z płaszczem wodnym również mogą być podłączone do instalacji grzewczej, jednak zazwyczaj mają niższą moc i często łączą funkcję ogrzewania z funkcją dekoracyjną.
Kotły na drewno są zaprojektowane przede wszystkim do ciągłego i efektywnego ogrzewania całego budynku, oferując większą moc i lepszą wydajność podczas długotrwałej pracy.
Na co zwrócić uwagę przed zakupem
Przed podjęciem ostatecznej decyzji warto zwrócić uwagę na parametry techniczne oraz jakość wykonania urządzenia.
Najważniejsze parametry, które należy wziąć pod uwagę, to:
- Moc nominalna (kW)
- Sprawność (wydajność cieplna)
- Grubość stali
- Rodzaj komory spalania
- Obecność wentylatora
- Możliwość współpracy ze zbiornikiem buforowym
- Warunki gwarancji i dostępność serwisu
Jakie drewno opałowe jest najbardziej odpowiednie
Wydajność kotła na drewno zależy nie tylko od modelu urządzenia, ale także od jakości używanego paliwa. Najlepsze rezultaty uzyskuje się przy użyciu suchego drewna twardego, takiego jak:
- Dąb
- Buk
- Grab
Wilgotność drewna opałowego powinna być niższa niż 20%, ponieważ mokre drewno obniża sprawność i zwiększa osadzanie się sadzy.

Najczęściej zadawane pytania (FAQ)
Jak często trzeba dokładać drewno do kotła?
Zazwyczaj załadunek jest wymagany co 3 do 6 godzin, w zależności od mocy kotła, temperatury zewnętrznej oraz izolacji budynku.
Czy kocioł na drewno może działać bez prądu?
Niektóre modele z naturalną cyrkulacją mogą pracować bez energii elektrycznej, jednak większość systemów wykorzystuje pompę obiegową i wymaga zasilania.
Czy potrzebny jest specjalny komin?
Tak, odpowiednio dobrany komin jest niezbędny do zapewnienia właściwego ciągu i bezpiecznej pracy systemu.
Jaka jest żywotność kotła?
Przy prawidłowej konserwacji kocioł może pracować od 10 do 20 lat.
Ile drewna potrzeba na jeden sezon grzewczy?
Średnio dom o powierzchni 120–150 m² potrzebuje od 8 do 15 metrów sześciennych drewna opałowego, w zależności od jakości izolacji oraz warunków klimatycznych.
Kotły na drewno pozostają praktycznym i ekonomicznym rozwiązaniem grzewczym, szczególnie w regionach bez infrastruktury gazowej. Zapewniają wysoką moc grzewczą i stosunkowo niskie koszty eksploatacji, jednak wymagają większego zaangażowania użytkownika.
Właściwy wybór zależy od wielkości nieruchomości, dostępnego budżetu oraz oczekiwanego poziomu komfortu. Odpowiednio dobrany i profesjonalnie zainstalowany kocioł na drewno może zapewnić niezawodne ogrzewanie przez wiele lat.
Zobacz także: